Woodstock Mulberry Model Home
INFORMATION
LOCATION: Woodstock, ON
TOOLS: Adobe Illustrator + AutoCAD
Exterior Elevation Light Locations
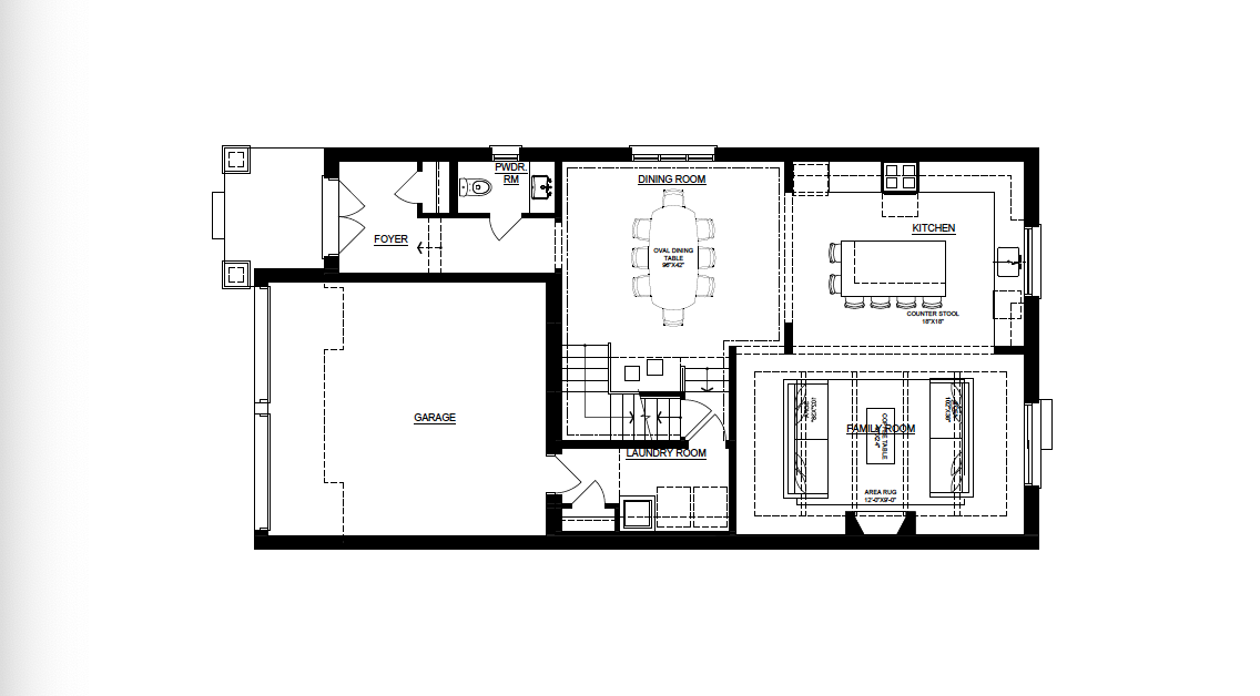
Ground Floor Furniture Plan
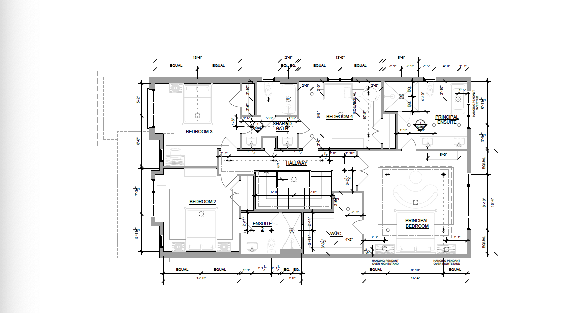
Second Floor Furniture Plan
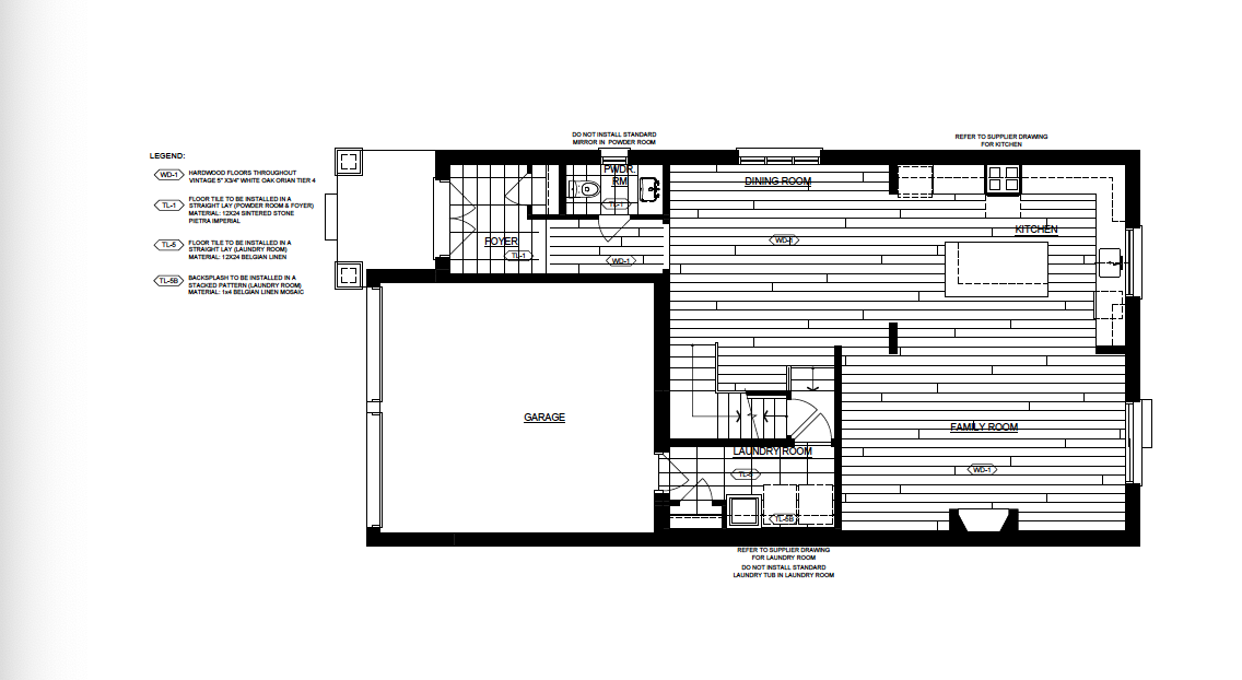
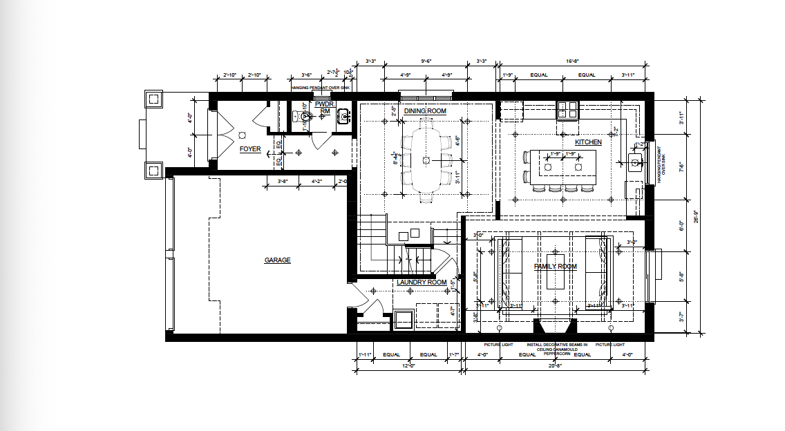
Main Floor Finishes Plan
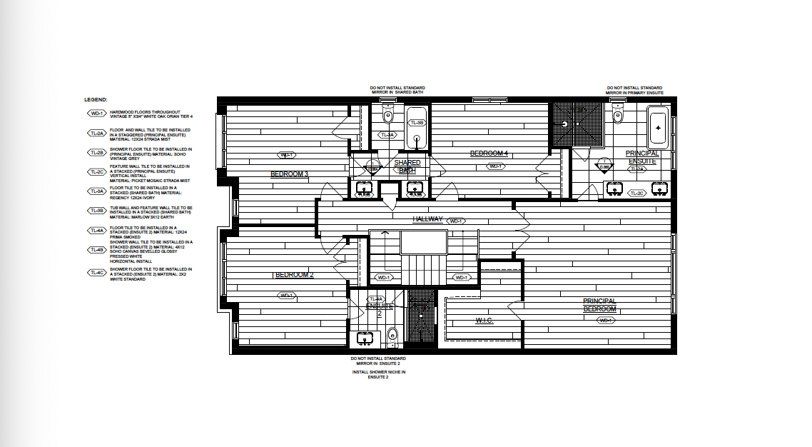
Second Floor Finishes Plan
Main Floor Reflected Ceiling Plan
Second Floor Reflected Ceiling Plan
Electrical Legend
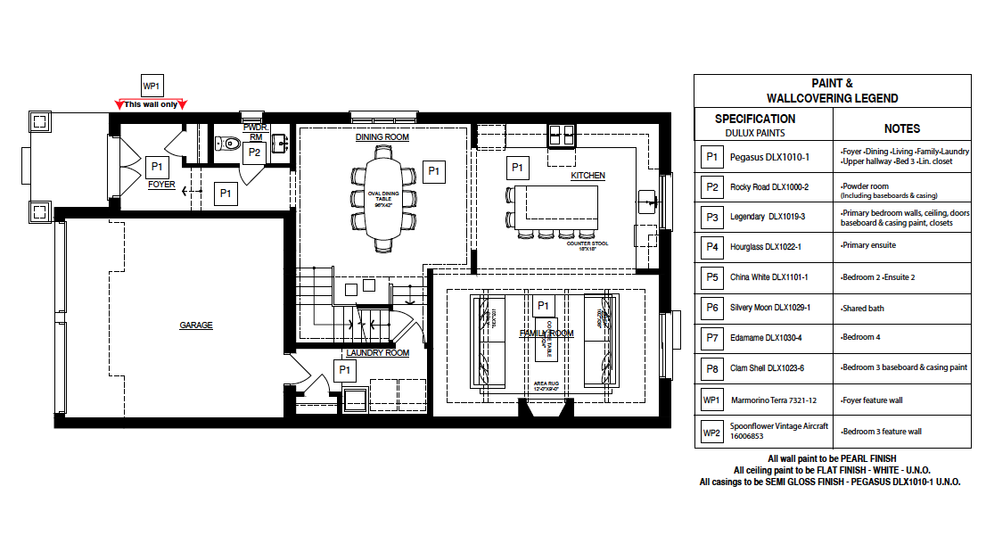
Ground Floor Paint Schedule
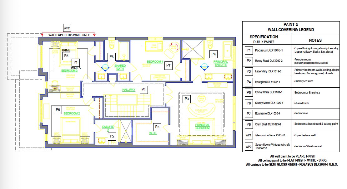
Second Floor Paint Schedule
Paint + Wallpaper Selections
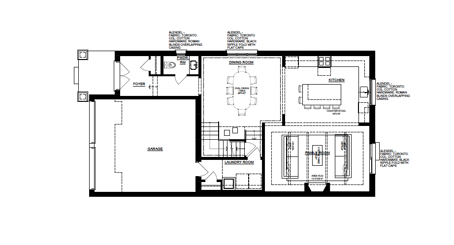
Ground Floor Drapery Schedule
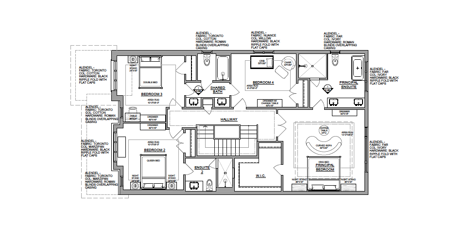
Second Floor Drapery Schedule
Shared Bath Elevation
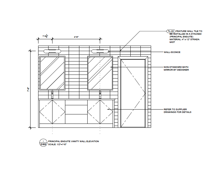
Primary Ensuite Elevation
Concept Tear Sheet
Exterior
Dining Room
Dining Room
Dining Room
Kitchen
Kitchen
Kitchen
Kitchen
Kitchen | Living Room
Kitchen | Living Room
Kitchen | Living Room
Kitchen | Living Room
Living Room
Living Room
Living Room
Second Floor Hallway
Primary Bedroom
Primary Ensuite
Bedroom 2
Bedroom 2
Bedroom 2
Bedroom 2
Bedroom 2
Bedroom 2 | Ensuite 2
Bedroom 3
Bedroom 3
Bedroom 3
Shared Bath
Bedroom 3
Bedroom 4
Bedroom 4